
Development Opportunities
St Helens, North West
Approved Planning Permission for 4 Dwellings:
PLOT 1: 3B @ 94m²
PLOT 2: 3B @ 86m²
PLOT 3: 3B @ 86m²
PLOT 4: 3B @ 94m²
Freehold development opportunity
Guiding the price at £175k + VAT
Kettering, Midlands
Approved Planning Permission for 3 Dwellings:
PLOT 1: 3B @ 96m²
PLOT 2: 3B @ 96m²
PLOT 3: 3B @ 96m²
Freehold development opportunity
Guiding the price at £200k + VAT
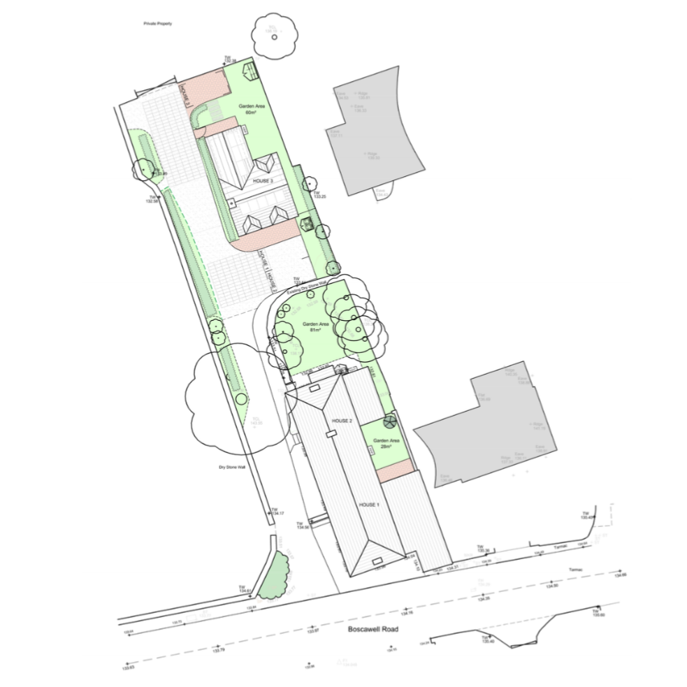
Cornwall, South West
Approved Planning Permission for 5 Dwellings:
PLOT 1: 3B @ 85m²
PLOT 2: 3B @ 85m²
PLOT 3: 3B @ 85m²
PLOT 4: 3B @ 86m²
PLOT 5: 3B @ 85m²
Freehold development opportunity
Guiding the price at £400k + VAT
Oxford, South East
Approved Planning Permission for 1 Dwelling:
PLOT 1: 3B @ 112m²
Freehold development opportunity
Guiding the price at £160k + VAT
Pool, South West
Approved Planning Permission for 3 Dwellings:
PLOT 1: 3B @ 90m²
PLOT 2: 3B @ 90m²
PLOT 3: 3B @ 90m²
Freehold development opportunity
Guiding the price at £175k + VAT
Berwick, North East
Approved Planning Permission for 7 Dwellings:
PLOT 1: 3B @ 99m²
PLOT 2: 3B @ 99m²
PLOT 3: 3B @ 85m²
PLOT 4: 3B @ 85m²
PLOT 5: 2b @ 80m² (APT)
PLOT 6: 1B @ 55m² (APT)
PLOT 7: 2B @ 95m² (APT)
Freehold Development Opportunity
Guiding the price at £325k + VAT
Oakerthorpe, East Midlands
Approved Planning Permission for 4 Dwellings:
PLOT 1: 4B @ 209m²
PLOT 2: 3B @ 93m²
PLOT 3: 3B @ 93m²
PLOT 4: 3B @ 93m²
Freehold development opportunity
PLOT 1: Guiding the price at £350k + VAT
PLOT 2-4: Guiding the price at £290k + VAT
Overton, South East
Approved Planning Permission for 1 Dwelling:
PLOT 1: 4B @ 120 m²
Freehold development opportunity
Guiding the price at £200k + VAT
Warminster, South West
Approved Planning Permission for
6 Apartments and 2 Semi-Detached Homes:
PLOT 1: 2B @ 74m²
PLOT 2: 1B @ 54m²
PLOT 3: 1B @ 65m²
PLOT 4: 1B @45m²
PLOT 5: 2B @ 86m²
PLOT 6: 2B @ 91m²
PLOT 7: 3B @ 93m²
PLOT 8: 3B @ 93m²
Freehold development opportunity
Guiding the price at £499k + VAT
Fordingbridge, South East
Approved Planning Permission for 6 Dwellings:
PLOT 1: 4B @150m²
PLOT 2: 3B @ 105.8m²
PLOT 3: 4B @ 119.7m²
PLOT 4: 3B @ 93m²
PLOT 5: 3B @ 93m²
PLOT 6: 2B @ 80m²
Freehold development opportunity
OFFERS INVITED
Kingsfold, West Sussex
Approved Planning Permission for 2 Semi-Detached Homes:
PLOT 1: 3B @ 98m²
PLOT 2: 3B @ 98m²
Freehold development opportunity
Guiding the price at £270k + VAT
Anglesey, North Wales
Approved Planning Permission for 3 Dwellings:
PLOT 1: 3B @ 90m²
PLOT 2: 3B @ 92m²
PLOT 3: 3B @ 90m²
Freehold development opportunity
Guiding the price at £135k + VAT
Fareham, South East
Approved Planning Permission for 1 Dwelling:
PLOT 1: 3B @ 98m²
Freehold development opportunity
Guiding the price at £175k + VAT
Ipswich, South East
Approved Planning Permission for 4 Dwellings:
PLOT 1: 3B @ 93m²
PLOT 2: 3B @ 93m²
PLOT 3: 3B @ 93m²
PLOT 4: 3B @ 93m²
Freehold development opportunity
Guiding the price at £275k + VAT
Get in touch
If you're interested in any of the listed opportunities, require additional information, or would like to discuss other potential development options, please don't hesitate to contact us.
Supporting documents will be provided upon request. Site visits must be arranged, booked, and confirmed in advance.
Emma Vandanburgh
PROPERTY SALES MANAGER
emma@cordagegroup.co.uk
M +44 (0) 7469 956240
Garry Cherrett
PROPERTY SALES MANAGER
garry@cordagegroup.co.uk
M +44 (0) 7980 823998